
Sostenibilità, Efficienza energetica, Design Esclusivo.
In continuità con la recente realizzazione del Green Residence, Gaidember propone Green Home: sei ville esclusive, in posizione centralissima ma nello stesso tempo inserite in un contesto totalmente sereno con estesi spazi verdi.
Le ville sono caratterizzate da una progettazione innovativa e ricercata, finalizzata al massimo comfort, con finiture di alta qualità. Principale caratteristica sono le ampie vetrate della zona living che creano un forte legame con l’area outdoor e il giardino.
Particolare attenzione è stata posta alla filosofia green che ha guidato il progetto prevedendo l’utilizzo di tecnologie e materiali termo-acustici che consentono di ottenere le certificazioni acustica e antisismica e la classificazione energetica A4. Garantiamo inoltre la possibilità di personalizzare le ville rendendole su misura per voi.
Villa – A1
Via Zermanesa, 31021 Mogliano Veneto (TV) – CENTRO
Anno di costruzione
2024-25
Locali
8
Bagni
3
Piano
T-1
Metri quadrati
215
I dettagli
La Villa A1 è caratterizzata da ampi spazi interni, è distribuita su due livelli e vanta un giardino privato di 158 mq. Il piano terra è composto da un’ampia e luminosa zona living di 51 mq, un bagno finestrato di 5 mq, un disimpegno collegato con il locale lavanderia, il garage di 23 mq.
Il primo piano include tre camere, di cui la matrimoniale comprensiva di cabina armadio e bagno in camera di complessivi 27 mq, una stanza ripostiglio, un bagno di oltre 7 mq e il disimpegno. Completano il piano primo 2 terrazze di 6 e 11,5 mq e un vano tecnico.
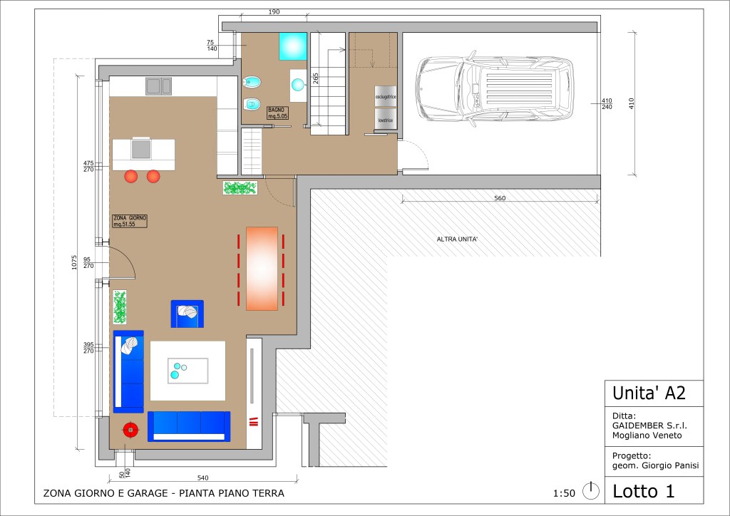
Villa A2
Via Zermanesa, 31021 Mogliano Veneto (TV) – CENTRO
Anno di costruzione
2024-25
Locali
8
Bagni
3
Piano
T-1
Metri quadrati
224
I dettagli
La Villa A2 è caratterizzata da ampi spazi interni, è distribuita su due livelli e vanta un giardino privato di 250 mq. Il piano terra è composto da un’ampia e luminosa zona living di 52 mq, un bagno finestrato di 5,05 mq, un disimpegno collegato con il locale lavanderia, il garage di 23 mq.
Il primo piano include tre camere, di cui la matrimoniale comprensiva di cabina armadio e bagno in camera di complessivi 27,5 mq, una stanza ripostiglio, un bagno di 6 mq e il disimpegno. Completano il piano primo 2 terrazze di 6 e 11,15 mq e un vano tecnico.
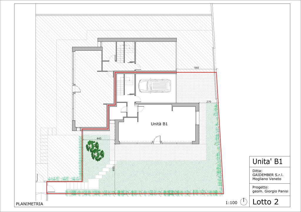
Villa B1 – VENDUTA
Via Zermanesa, 31021 Mogliano Veneto (TV) – CENTRO
Anno di costruzione
2024-25
Locali
8
Bagni
3
Piano
T-1
Metri quadrati
218
I dettagli
La Villa B1 è caratterizzata da ampi spazi interni, è distribuita su due livelli e vanta un giardino privato di 186 mq. Il piano terra è composto da un’ampia e luminosa zona living di 51 mq, un bagno finestrato di 5 mq, un disimpegno collegato con il locale lavanderia, il garage di 23 mq.
Il primo piano include tre camere, di cui la matrimoniale comprensiva di cabina armadio e bagno in camera di complessivi 27 mq, una stanza ripostiglio, un bagno di oltre 7 mq e il disimpegno. Completano il piano primo 2 terrazze di 6 e 11,5 mq e un vano tecnico.
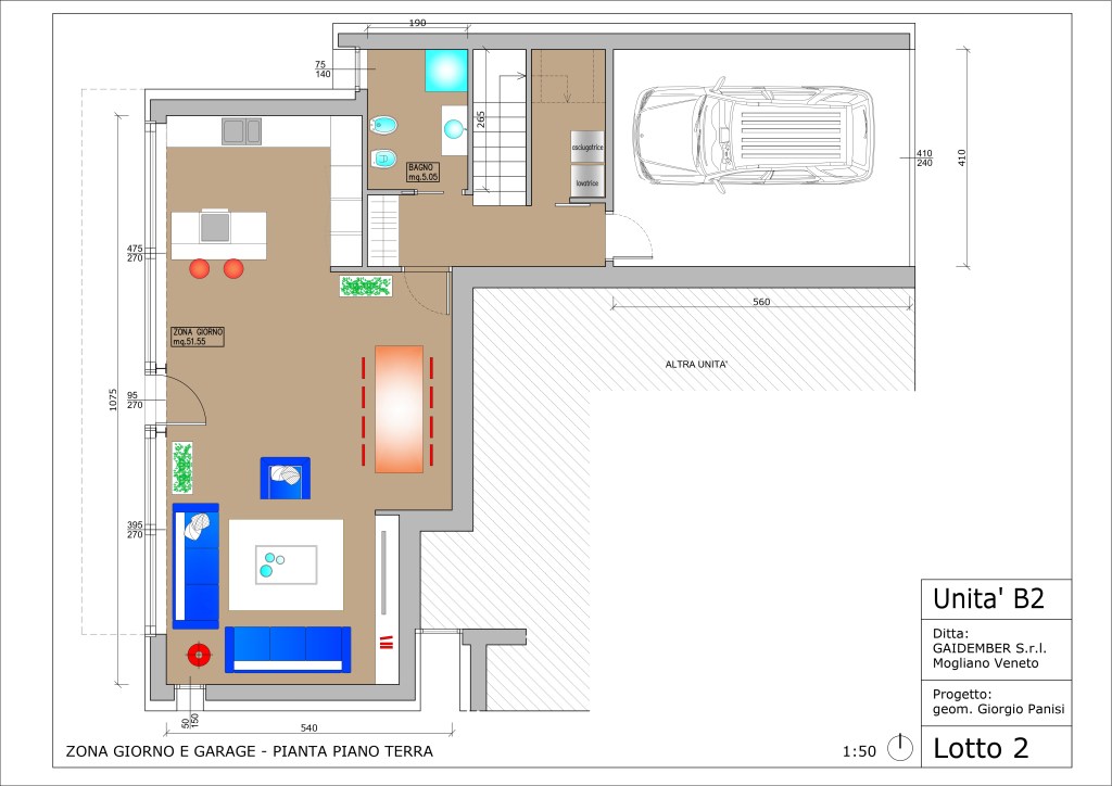
Villa B2 – VENDUTA
Via Zermanesa, 31021 Mogliano Veneto (TV) – CENTRO
Anno di costruzione
2024-25
Locali
8
Bagni
3
Piano
T-1
Metri quadrati
223
I dettagli
La Villa B2 è caratterizzata da ampi spazi interni, è distribuita su due livelli e vanta un giardino privato di 236 mq. Il piano terra è composto da un’ampia e luminosa zona living di 52 mq, un bagno finestrato di 5,05 mq, un disimpegno collegato con il locale lavanderia, il garage di 23 mq.
Il primo piano include tre camere, di cui la matrimoniale comprensiva di cabina armadio e bagno in camera di complessivi 27,50 mq, una stanza ripostiglio, un bagno di 6 mq e il disimpegno. Completano il piano primo 2 terrazze di 6 e 11,15 mq e un vano tecnico.
Villa C1
Via Zermanesa, 31021 Mogliano Veneto (TV) – CENTRO
Anno di costruzione
2024-25
Locali
9
Bagni
3
Piano
T-1
Metri quadrati
236
I dettagli
La Villa C1 è caratterizzata da ampi spazi interni, è distribuita su due livelli e vanta un giardino privato di 316 mq. Il piano terra è composto da un’ampia e luminosa zona living di 60 mq, un bagno finestrato di 4,25 mq, un disimpegno collegato con il locale lavanderia, il garage di 21 mq.
Il primo piano include tre camere, di cui la matrimoniale comprensiva di cabina armadio e bagno in camera di complessivi 26 mq, una zona salotto/studio, un bagno di 6 mq e il disimpegno con zona armadi a muro. Completa il piano primo una terrazza di 14 mq.
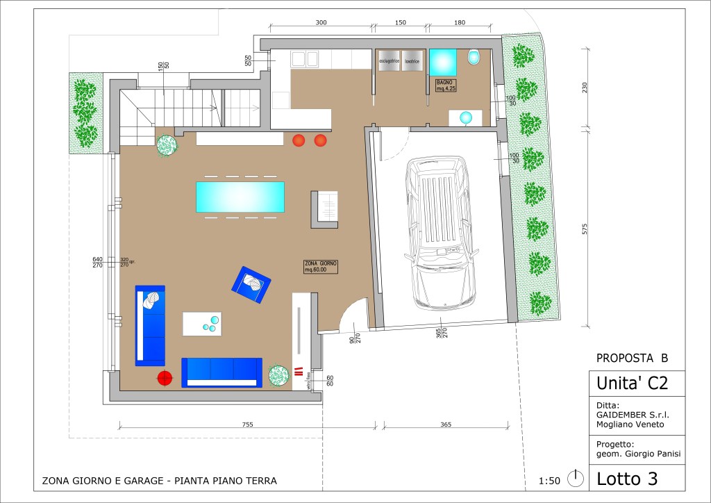
Villa C2
Via Zermanesa, 31021 Mogliano Veneto (TV) – CENTRO
Anno di costruzione
2024-25
Locali
9
Bagni
3
Piano
T-1
Metri quadrati
232
I dettagli
La Villa C2 è caratterizzata da ampi spazi interni, è distribuita su due livelli e vanta un giardino privato di 275 mq. Il piano terra è composto da un’ampia e luminosa zona living di 60 mq, un bagno finestrato di 4,25 mq, un disimpegno collegato con il locale lavanderia, il garage di 21 mq.
Il primo piano include tre camere, di cui la matrimoniale comprensiva di cabina armadio e bagno in camera di complessivi 26 mq, una zona salotto/studio, un bagno di 6 mq e il disimpegno con zona armadi a muro. Completa il piano primo una terrazza di 14 mq.
Pianifica una visita privata
Non esitare a contattarci:








































